Россия
Россия
Архитектурные решения всегда должны быть направлены на удовлетворение социально-культурных потребностей человека. Изучению влияния социального развития на городское планирование и жилую застройку посвящены работы Ле Корбюзье, Ральфа Эрскина, Джейн Джейкобс, Кевина Линча, Ричарда Сеннетта. Потребности в жилище в немалой степени зависят и от периода жизни человека. В связи с этим Ле Корбюзье выступал за создание гибкой архитектуры, которая меняется в зависимости от фазы жизни. Жилье должно соответствовать социальному статусу и личным потребностям каждого члена семьи. Одним из способов реализации этой потребности является коливинг. Он привлекателен для людей на разных этапах жизни. Молодые люди могут выбрать коливинг, чтобы сэкономить на аренде и жить ближе к работе и развлечениям. Молодые семьи могут использовать его для совместного использования пространства с другими родителями и детьми. Коливинг также удобен на переходных этапах жизни и позволяет находить новых друзей и иметь больше возможностей для социального взаимодействия. Среди архитекторов, работавших над проектами коливинга, можно выделить Олафура Элиассона, Нормана Фостера, Жаннетт Мардини и Дэвида Чипперфилда. В работе предложены планировки коливингов для жилья аспирантов и преподавателей высшей школы.
социальное развитие, архитектура, жизненный цикл, планировочные решения, типология жилища, коливинг
Введение
Традиционный дом в разных культурах имеет свои уникальные особенности, которые соответствуют определенным нормам. В некоторых культурах комнаты разделены по полу, в других — по возрасту. Социально-культурные потребности влияют на то, как распределяется пространство в доме, какие материалы используются для строительства и декорации.
Еще одним важным аспектом, на который влияют социально-культурные потребности человека, является концепция «дома как убежища». В соответствии с этой концепцией, дом должен быть безопасным местом, где люди могут отдохнуть и заняться своими делами. Это может означать, что наличие защищенных пространств, например дворов, террас, высоких заборов или стен.
Экологические, климатические, экономические, технологические и другие факторы, также оказывают свое влияние на архитектуру жилища. Однако социально-культурные потребности являются основополагающими и необходимыми при проектировании и строительстве домов.
Исследования влияния социальных и культурных факторов на архитектуру
Одним из наиболее известных архитекторов, который активно учитывал социальные потребности в своих проектах, был Ле Корбюзье. В своих работах он выдвигал концепцию "человеческой масштабности" в архитектуре, которая учитывала потребности и комфортность обитателей жилья. Он высказывал идеи о том, что жилье должно предоставлять не только функциональные возможности, но и комфорт и гармонию, а также быть частью общего образа жизни и стимулировать социальный прогресс. Ле Корбюзье призывал людей изменять свой образ жизни и переходить к более функциональным и эргономичным формам проживания. Ле Корбюзье считал, что для комфортной жизни необходимо создание функциональных и эстетических пространств, которые могут соответствовать потребностям человека. Он выделил пять основных потребностей: спать, одеваться, готовить и есть пищу, отдыхать и заниматься физическими упражнениями, работать и изучать [1, 2].
Он также полагал, что такое пространство должно быть открытым, светлым, просторным и гармоничным [3].
Кроме того, Ле Корбюзье считал, что качество жизни зависит от доступности к социальным услугам, таким как здравоохранение, образование, культура и транспортная инфраструктура.
Особое внимание акцентировалось на том, что архитектура должна сочетать в себе функциональность и красоту, чтобы удовлетворять потребности различных групп населения.
Еще одним известным архитектором, который писал о влиянии социального развития на жилое строительство, был Оскар Нимейер. Он активно экспериментировал с новыми формами и материалами. Несмотря на то, что Оскар Нимейер проектировал в соответствии с пятью правилами Ле Корбюзье, он разработал свои принципы, поставив на первое место социально-целительные способности красоты [4].
Влияние социального развития на изменение архитектуры жилья и облика города изучали Ральф Эрскин, Джейн Джейкобс, Кевин Линч, Ричард Сеннетт.
Ральф Эрскин известен не только разработкой типологий и строительством социального жилья, ориентированного на создание комфортных условий для жизни, но и разработал проект субарктического города [5, 6].
Основательница движения нового урбанизма Джейн Джейкобс, в своей книге «Смерть и жизнь больших американских городов» писала о том, что город должен быть нацелен на социальное взаимодействие. Джейн Джекобс выступала против градостроительства, которое во имя крупных проектов развития и обновления городов, разрушает старые общины. При этом она была сторонницей зданий смешанного использования как способа увеличить социальное взаимодействие. В таких зданиях магазины и офисы располагаются на первом этаже, а люди живут на верхних этажах [7].
Кевин Линч американский специалист по теории градостроительства и психологии восприятия архитектуры и социолог Ричард Сеннетт исследовали тему городского планирования с точки зрения социальной справедливости и взаимодействия культурных групп [8, 9].
Современная архитектура испытывает влияние социальной эволюции - процесса изменения социальных отношений, обычаев, ценностей и институтов в обществе со временем, на планировочные решения жилища. Социальная эволюция происходит под воздействием различных факторов, таких как технологические, политические, экономические изменения, а также изменений в культуре и образе жизни. Через социальную эволюцию общество продвигается вперед, изменяясь и адаптируясь к меняющимся условиям и вызовам.
Архитектура жилища на разных этапах жизненного цикла человека
Жизненный цикл человека начинается с рождения и охватывает периоды детства, подросткового возраста, взрослости и старости. Каждый из этих периодов связан с определенными физическими, психологическими и социальными изменениями и вызовами, которые человек должен преодолеть для того, чтобы стать зрелым и подготовленным к старости. В течение жизненного цикла человека происходят различные события и переживания, такие как получение образования, заключение брака, рождение детей, карьерный рост, уход за стареющими родственниками, изменение здоровья и т.д. Жизненный цикл человека является важным понятием не только для таких областей науки, как медицина, психология, социология и геронтология, но и для архитектуры
Идею изменяемости мест проживания в процессе жизни выдвигал швейцарский архитектор и городской планировщик Ле Корбюзье. В своей работе "Пяти точек новой архитектуры" (1927 г.), он выступал за создание архитектуры, которая должна изменяться в зависимости от потребностей людей в разных фазах их жизни. Он не определял точного числа мест жительства, которые нужно сменить для комфортной жизни, но считал, что людям нужно находиться в гармонии с окружающей средой и социально-экономической реальностью своего времени. В частности, он предлагал создавать многоквартирные дома с общими пространствами и современными технологиями, которые могут удовлетворить различные потребности и сделать жизнь более удобной и эффективной.
Каждый период жизни человека связан с определенными потребностями и требованиями к жилищу, которые могут варьироваться в зависимости от возраста, физического состояния и социального статуса [10].
Молодые люди и супружеские пары, которые только начинают свою жизнь вместе, могут выбирать просторные комнаты и открытую планировку, чтобы удобно проводить время вместе и иметь возможность готовить и развлекаться в одной общей зоне.
В детстве здоровый ребенок должен активно развиваться, поэтому для него важны наличие свободного пространства для игры и обучения. В это время архитектура жилища должна предусматривать безопасность, доступность и удобство для детей, включая грамотное использование цвета, текстур, материалов и форм, и при этом обеспечивать безопасность и контроль для родителей.
В подростковом возрасте обычно происходят серьезные изменения как внешней, так и внутренней жизни. Подростки стремятся к самостоятельности и независимости, поэтому им необходимо больше приватных зон внутри жилища. Также важно учитывать их стиль и интересы, чтобы создать комфортное для них пространство.
В зрелом возрасте люди начинают стремиться к более стабильной и комфортной жизни. Жилье должно соответствовать их социальному статусу и предоставлять все удобства для комфортной жизни. Например, кухня должна быть оборудована всем необходимым для уединенного приготовления пищи, а спальня должна быть тихой и уютной с мягкой мебелью. Важно также учитывать личные потребности каждого члена семьи: хобби, интересы, привычки.
В старости люди часто нуждаются в доступности и легкости перемещения по жилью, поэтому важно установление поручней, лестниц и других приспособлений для обеспечения безопасности. Кроме того, жилье может быть спроектировано с учетом возможных ограничений в передвижении, включая размещение комнат на одном уровне, использование широких проходов и устройств для движения.
Место коливинга в жизненном цикле человека
Коливинг - новый тренд в жилье, который представляет собой концепцию общего проживания людей в одном доме или квартире. Этот формат жилья может быть привлекательным для людей на разных этапах жизненного цикла.Молодые люди, начинающие свою карьеру, могут выбрать коливинг, чтобы снизить расходы на аренду и жить в центре города, где находятся многие рабочие места и развлечения [11, 12].
Молодые семьи могут также использовать коливинг в качестве более доступного варианта жилья с возможностью делить общие пространства, такие как кухня и гостиная, с другими родителями и детьми.
Старшие люди могут также предпочитать коливинг, чтобы жить в более компактных, но удобных для проживания квартирах с лучшей инфраструктурой, которая обеспечивает безопасность и комфорт. Они также могут использовать коливинг, чтобы иметь больше возможностей для социального взаимодействия и общения с другими жильцами.
Кроме того, коливинг удобен на переходных этапах жизни, таких как переезд в новый район или город. Коливинг может обеспечить уютное и безопасное проживание с возможностью новых знакомств и социализации.
Еще одна особенность коливинга — возможность совместной работы и совместных проектов. По отзывам жителей коливингов, им удавалось решить задачи, в других условиях вызывающих значительные затруднения.
Коливинг также эффективен на переходных этапах жизни, таких как переезд в новый район или город, поскольку он может обеспечить уютное и безопасное проживание с возможностью новых знакомств и социализации.
Таким образом, коливинг может быть привлекательным вариантом для людей на разных этапах жизненного цикла, предлагая альтернативу традиционным формам жилья и удовлетворяя различные потребности. Это связано с тем, что жилье в коливинге может быть более доступным, чем аренда отдельной квартиры или дома, что позволяет сэкономить деньги на жилье и расходы на коммунальные услуги. Кроме того, он дает возможность жить в обществе с другими людьми. Жильцы коливинга могут находить новых друзей и иметь больше возможностей для социального взаимодействия. Планировочные решения коливинга могут быть гибкими и адаптивными, что позволяет арендаторам менять свое жилье, если их потребности изменятся.
Среди архитекторов, работавших над проектами коливинга, можно выделить: Олафура Элиассона (Olafur Eliasson) — датского художника и архитектора, известного своими инновационными конструкциями, включая проект коливинга выздоровления в Копенгагене. Нормана Фостера (Norman Foster) - британского архитектора, чье бюро спроектировало проекты коливинга в Париже и Лондоне. Жаннетт Мардини (Jeanette Mardinian) - ливанского архитектора и основательницу компании TeN Design Studio, которая специализируется на дизайне и разработке проектов коливингов в Бейруте и других городах по всему миру. Дэвида Чипперфилда (David Chipperfield) - британского архитектора, бюро которго работает над различными проектам в том числе и коливинг-пространствами.
Планировочные решения коливингов
Ярким примером применения компоновки в едином коливинге нескольких типов ячеек-квартир для различных типов пользователей является коливинг в Сеуле с Южной Корее «Treehouse» [13]. Он представляет собой 6 жилых этажей, в которых расположены 72 квартиры. При этом выделено 5 видов ячеек, различные по габаритам и внутреннему наполнению — от 21 м2 до 35 м2.
В таблице 1 представлен перечень всех помещений, входящих в личную зону и площади для каждого типа ячеек. При этом наполнение и размер ячеек разнится, предоставляя пользователями выбор в зависимости от потребностей и финансовых возможностей человека. На рисунке 1 представлен внешний вид и интерьеры коливинга, а на рисунке 2 - Разрез, компоновка блоков и планировочное решение.
Таблица 1.
Типология жилых ячеек и площади личных помещений. Коливинг «Treehouse». Сеул, Южная Корея
|
Личные помещения |
Тип жилой ячейки, площадь помещения (м2) |
||||
|
Зона в ячейке |
Тип 1 |
Тип 2 |
Тип 3 |
Тип 4 |
Тип 5 |
|
Жилая комната |
14,9 |
5,83 |
8,06 |
9,17 |
14,31 |
|
Гостиная |
— |
9,28 |
10,21 |
9,17 |
12,45 |
|
Рабочее место |
стол |
стол |
стол |
стол |
стол |
|
Сан. узел |
3,68 |
3,68 |
3,68 |
3,68 |
2,75 |
|
Душ/ванна |
душ |
душ |
ванна |
ванна |
ванна |
|
Кухня |
ниша (1,3 м) |
ниша (1,5 м) |
ниша (2 м) |
ниша (2,4 м) |
ниша (2,5 м) |
|
Прихожая |
3,1 |
2,06 |
2,27 |
2,65 |
5,16 |
|
Общая площадь личных помещений |
21,65 |
20,85 |
24,22 |
24,67 |
34,67 |
|
Количество личных помещений в здании |
16 |
16 |
16 |
18 |
6 |

Рис. 1. Внешний облик и интерьеры коливинга «Treehouse». Сеул, Южная Корея

Рис. 2. Разрез, компоновка блоков и планировочное решение коливинга «Treehouse». Сеул, Южная Корея
Еще один значимый пример коливинга, предоставляющего разнообразный выбор ячеек для пользователей является «Tetuan Coliving», расположенный в Мадриде (Испания) [14]. Проект является реконструкцией существующего здания, он был реализован в 2019 году.
В этом случае применяется 4 типа ячеек для проживания, начиная от скромной комнаты, площадью 12 м2 с личным сан узлом и заканчивая квартирой площадью 56 м2, которая включает в себя гостиную и кухню. На рисунке 3 представлен внешний вид и интерьеры коливинга, а на рисунке 4 — разрез и планировочное решение.
Таблица 2.
Типология жилых ячеек и площади личных помещений. Коливинг «Tetuan Coliving». Мадрид, Испания
|
Личные помещения |
Тип жилой ячейки, площадь помещения (м2) |
|||
|
Зона в ячейке |
Тип 1 |
Тип 2 |
Тип 3 |
Тип 4 |
|
Жилая комната |
11,64 |
11,08 |
19,65 |
14,4 |
|
Гостиная |
— |
— |
— |
31,79 |
|
Рабочее место |
стол |
стол |
стол |
— |
|
Сан. узел |
1,71 |
1,89 |
2,9 |
2,63 |
|
Душ/ванна |
душ |
душ |
ванна |
душ |
|
Кухня |
— |
— |
ниша (1,2 м) |
7,05 |
|
Общая площадь личных помещений |
13,35 |
12,97 |
22,55 |
55,87 |
|
Количество личных помещений в здании |
8 |
8 |
4 |
4 |
Рис. 3. Внешний облик и интерьеры коливинга «Tetuan Coliving». Мадрид, Испания

Рис. 4. Разрез и планировочное решение коливинга «Tetuan Coliving». Мадрид, Испания
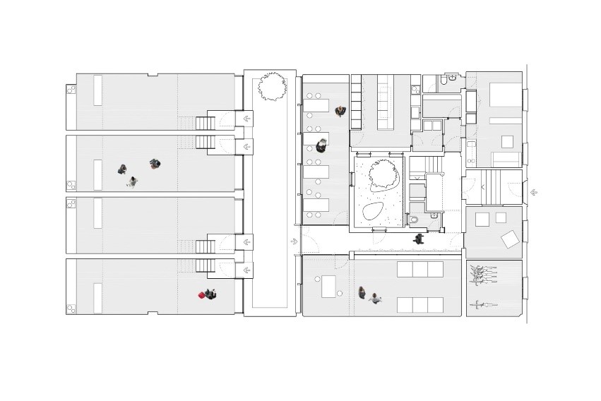
При рассмотрении влияния социально-культурного контекста среды на проживание профессорско-преподавательского состава и аспирантов в коливингах, для наиболее обширного охвата различных возрастных категорий и вариаций состава семей, выделим 5 видов пользователей, соответствующих определенному этапу жизненного сценария: аспирант, одиночка в расцвете жизненных сил, семейная пара, семья с ребенком и пожилой человек. Для каждого вида рассмотрим планировочные решения, отвечающие запросам соответствующего жизненного этапа.
В результате предлагается 5 типов решений квартир. Модульность системы позволяет компоновать ячейки в любом порядке и применять Первый тип представляет собой небольшую квартиру-студию для аспиранта, площадью 15 м2. В ней находится все самое необходимое для жизни молодого активного индивида — спальное место, рабочий стол и личный сан. узел с душевой кабиной.
Второй тип предполагает проживание для взрослого состоявшегося человека, сотрудника вуза, приехавшего в командировку. Площадь студии — 24 м2. В этом случае, помимо базового набора функций, предусмотрена двухспальная кровать и кухня-ниша.
В третьем случае рассматривается более долгосрочный вариант проживания, где сроки поездки предполагают размещение не только непосредственно специалиста, но и его супруга или супруги. Для пары предусмотрена квартира площадью 48 м2. Она выполнена в формате открытой студии, зонирование осуществляется при помощи меблировки. Пространство разделяется на зону кухни и места приема пищи, гостиную и спальную зону. Так же предусмотрено рабочее место, а кухонная поверхность предусматривает обширную зону для приготовления пищи.
Четвертый вариант так же рассматривает проживание семейного сотрудника, в этом случае в семье присутствует ребенок. Площадь квартиры — 73 м2, в ней расположена отдельная детская комната, два сан. узла, обширная зона гостиной, совмещенной с кухней, изолированный кабинет и спальня родителей. В спальне предусмотрен гардероб-встроенный шкаф.
Пятый тип предназначен для размещения пожилого сотрудника. Площадь данной квартиры — 30 м2, где все предусмотрено для комфортного передвижения и спокойного времяпрепровождения.

Рис.5. Типология пользователей и планировочных решений
Выводы
В статье рассмотрен ряд исследований, посвященных влиянию социальных и культурных факторов на архитектуру и градостроительную политику. Одним из факторов является этап жизни человека. В зависимости от фазы жизни изменяются и потребности человека, что должно быть отражено в архитектурных и планировочных решениях его жилища. Одним из способов реализации этого является коливинг — форма совместного проживания на основе аренды.
Коливинг может быть привлекательным для людей с разными потребностями и в разных фазах жизни. Одна из особенностей коливинга — сочетание в себе ячеек-квартир с различными планировками. В статье рассмотрены планировочные решения коливингов «Treehouse» в Сеуле и «Tetuan Coliving» в Мадриде.
Для проживания аспирантов и сотрудников университетов на различных этапах жизни в статье предложена типология модульной системы коливинга с ячейками-квартирами различного назначения.
1. Ле Корбюзье. Новый дух в архитектуре /Ле Корбюзье ; пер. с фр. - М.: Стрелка, 2017. - 113 с.
2. Ле Корбюзье. Архитектура XX века / Ле Корбюзье ; пер. с фр. - 2-е изд. - М.: Прогресс, 1977. - 303 с.
3. Синявина Н.В. Динамика пространственных представлений в архитектуре в первой половине ХХ в. (В. Гропиус и Ле Корбюзье) // Человек: Образ и сущность. Гуманитарные аспекты. 2023. №1 (53) - С.129-138. DOIhttps://doi.org/10.31249/chel/2023.01.07 EDN: https://elibrary.ru/WXXADO
4. Кипина Ж. Оскар Нимейер - мастер железобетонных кривых. // Losko - неккомерческий онлайн-журнал с фокусом на современный дизайн, архитектуру и художественное фото. - 2018. - 4 июня [Электронный ресурс]. URL: https://losko.ru/oscar-niemeyer-biography/ (дата обращения: 04.06.2023).
5. Сидорова Е.И., Данилова Э.В. Типология жилища на современном этапе на основе зарубежного опыта. Типы коммуникаций и зон доступа в жилых зданиях // Жилищное строительство. 2012. №10 - С.26-31 EDN: https://elibrary.ru/PUVYEZ
6. Татевосян А.Г. История развития архитектуры Арктики // Экономика строительства. - 2023. - № 1. - С.123-132 EDN: https://elibrary.ru/BLSGME
7. Джекобс Дж. Смерть и жизнь больших американских городов / пер. с англ. - М.: Новое изд-во, 2011. - 457 c. EDN: https://elibrary.ru/QNPXVL
8. Линч К. Совершенная форма в градостроительстве / пер. с англ. - М.: Стройиздат, 1986. - 264 с.
9. Вершинина И.А. Социология города Ричарда Сеннета: трансформация публичной сферы // Вестник Московского университета. Серия 18. Социология и политология. 2012. - №4. - С. 154-161 EDN: https://elibrary.ru/PRGEOD
10. Маккарти Дж. Риббенс. Исследования семьи: основные понятия / Джейн Риббенс Маккарти, Розалинд Эдвардс / пер. с англ. / под научной ред. Е. Ю. Рождественской. - М.: Изд. дом Высшей школы экономики, 2018. - 342 с.
11. Широкова О.Л., Павлюк А.С. Планировочные решения помещений для удаленной работы // Строительство и архитектура. - 2021. - №. 4. - С. 86-90. DOI:https://doi.org/10.29039/2308-0191-2021-9-4-86-90 EDN: https://elibrary.ru/WATMBE
12. Балакина А.Е., Павлюк А.С. Коливинг - инфраструктуры // Проект Байкал. - 2021. - Том 18. - № 70. - С. 156-161. DOI:https://doi.org/10.51461/projectbaikal.70.1907 EDN: https://elibrary.ru/WANNUY
13. Абдель Х. Апартаменты Трихаус Коливинг. // Арх-дейли. - 2020. - 29 января [Электронный ресурс]. URL: https://www.archdaily.com/932735/treehouse-apartment-building-bo-daa?ad_source=search&ad_medium=projects_tab / (дата обращения: 04.06.2023
14. Отт К. Тетуан Коливинг. // Арх-дейли. - 2020. - 29 января [Электронный ресурс]. URL: https://www.archdaily.com/930394/tetuan-coliving-ch-plus-qs-arquitectos?ad_source=search&ad_medium=projects_tab / (дата обращения: 04.06.2023)




